Έπαινος: Φοιτητικές Εστίες στον Δήμο Λεμεσού

Αρχιτέκτονες: Αίγλη Πατσαλίδου, Παναγιώτης Λιασή

 

Η παρούσα πρόταση εντάσσεται στο πλαίσιο του αρχιτεκτονικού διαγωνισμού για τη δημιουργία νέων φοιτητικών εστιών στη Λεμεσό, η οποια εχει στόχο την κάλυψη των αυξημένων αναγκών για στέγασης φοιτητών και να αποτελέσει σημείο αναφοράς για τον τρόπο που αντιλαμβανόμαστε σήμερα τη φοιτητική κατοίκηση. Ο σχεδιασμός του νέου συγκροτήματος βασίζεται σε μια φιλοσοφία που υπερβαίνει την απλή παροχή στέγης. Αποσκοπεί στη δημιουργία ενός σύγχρονου, βιώσιμου και κοινωνικά ενεργού μικρόκοσμου, όπου οι φοιτητές διαφορετικών ειδικοτήτων και καταβολών θα μπορούν να συνυπάρχουν, να αλληλεπιδρούν και να αναπτύσσουν κοινωνικές και γνωστικές δεξιότητες σε ένα περιβάλλον που συνδυάζει τη λειτουργικότητα με την ποιότητα ζωής.

Πρωταρχικός στόχος της πρότασης είναι η εδραίωση μιας νέας τυπολογίας φοιτητικής κατοίκησης, η οποία θα προάγει τη συνεργασία και την αλληλεπίδραση μεταξύ των ενοίκων, κάτω από μια κοινή  “στέγη”. Το συγκρότημα δεν αντιμετωπίζεται ως απομονωμένο σύνολο δωματίων, αλλά ως ένας κοινός τόπος ζωής και δράσης. Η έννοια της αυλής, των κήπων και των ενδιάμεσων κοινόχρηστων χώρων αποτελεί τον βασικό συνθετικό πυρήνα της πρότασης, επαναφέροντας τη σημασία του μη δομημένου χώρου ως οργανωτικού στοιχείου. Ο υπαίθριος χώρος λειτουργεί ως πεδίο εκτόνωσης, κοινωνικοποίησης και αναψυχής, ενώ ταυτόχρονα αποτελεί τον φυσικό συνδετικό ιστό που ενοποιεί τις λειτουργίες του συγκροτήματος.

Η αρχιτεκτονική σύνθεση χαρακτηρίζεται από καθετότητα στην ανάπτυξη, με εναλλαγές όγκων και ύψους. Το παιχνίδι αυτό των όγκων προσφέρει μια κλιμακωτή ανάπτυξη της σύνθεσης, από τριώροφο έως εξαώροφο συγκρότημα, δημιουργώντας ποικιλία και ενδιαφέρον στην όψη. Η μορφολογική διαφοροποίηση ενισχύεται και από την εναλλαγή της υλικότητας: οι χώροι με πιο δημόσιο χαρακτήρα διαμορφώνονται με εκτεταμένες υαλώσεις και προστατεύονται με κατακόρυφες μεταλλικές δοκίδες διαφορετικών διαμέτρων, ενώ η συνολική ανωδομή αποκτά ενιαία ηλιοπροστασία μέσω στοιχείων από διάτρητη λαμαρίνα διαφορετικής πυκνότητας, δίνοντας μια εναλαγή στην υφή της όψης. Η προσέγγιση αυτή αναδεικνύει το δημόσιο και το ιδιωτικό στοιχείο, δημιουργώντας έναν ενιαίο αλλά και διαφοροποιημένο χαρακτήρα.

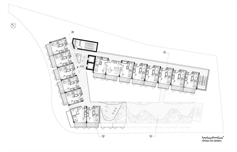
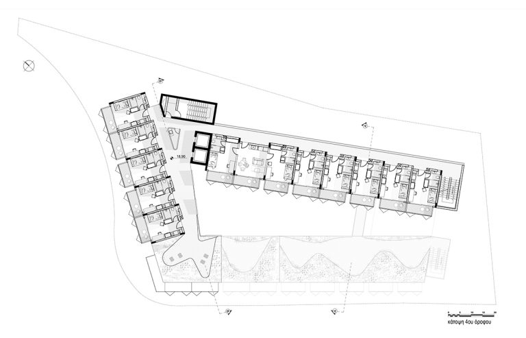
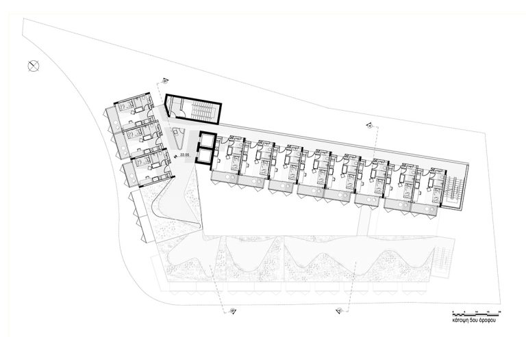
Το έργο χωροθετείται επί της οδού Βορείου Ηπείρου, σε κομβικό σημείο της πόλης. Τα δωμάτια αναπτύσσονται κυρίως προς τον νοτιοδυτικό προσανατολισμό, εξασφαλίζοντας θέα προς τον κύριο δρόμο και παράλληλα ευνοϊκές συνθήκες ηλιασμού. Η σύνθεση οργανώνεται γύρω από ένα κεντρικό αίθριο, που λειτουργεί ως «καρδιά» του συγκροτήματος και συμβάλλει στον φυσικό φωτισμό και τον αερισμό. Το κτήριο αποτελείται από ισόγειο, μεσοπάτωμα και έξι ορόφους κατοίκησης. Στο ισόγειο διαμορφώνεται ένας ελεύθερος κήπος με φυτεύσεις και καθιστικούς χώρους. Ο κήπος αναπτύσσεται σε ένα ανακλιμένο επίπεδο με ανοδική κλίση, κάτω από το οποίο βρίσκονται οι χώροι στάθμευσης και οι βοηθητικές λειτουργίες. Στο ψηλότερο σημείο του τεχνητού λόφου, χωροθετούνται το γυμναστήριο και το αναγνωστήριο, στραμμένα προς το αίθριο.

Η είσοδος προς τους χώρους διαβίωσης γίνεται μέσα από μια στοά που διασχίζει εγκάρσια τον φυτεμένο κήπο και οδηγεί στο κλιμακοστάσιο και τους ανελκυστήρες, προσφέροντας μια ομαλή μετάβαση από τον δημόσιο στον ιδιωτικό χώρο. Στο ισόγειο τοποθετούνται οι πιο δημόσιες λειτουργίες. Στο δυτικό άκρο του τεμαχίου βρίσκεται ο χώρος υποδοχής, σε άμεση σύνδεση με τον χώρο του φύλακα και τις υπηρεσίες που χρειάζονται οι φοιτητές. Από εκεί, μια κεντρική σκάλα οδηγεί στον πυρήνα των κλιμακοστασίων, εξασφαλίζοντας άνετη και λειτουργική ροή. Στο βορειοανατολικό τμήμα χωροθετούνται το γυμναστήριο και το μελετητήριο, πλησίον του κλιμακοστασίου για εύκολη πρόσβαση. Στο νοτιοανατολικό άκρο αναπτύσσεται ο χώρος ψυχαγωγίας, σε άμεση σύνδεση με ένα υπαίθριο κλιμακωτό πλατώμα που επεκτείνει τη δραστηριότητα προς το αίθριο.

Οι τέσσερις αυτοί βασικοί χώροι – χώρος υποδοχής, γυμναστήριο, μελετητήριο και αίθουσα ψυχαγωγίας – αν και διασκορπισμένοι σε διαφορετικά σημεία, χωροθετούνται περιμετρικά του αιθρίου και συνδέονται μεταξύ τους μέσω συνδετικών διαδρόμων σε δύο διαφορετικές στάθμες, ενισχύοντας την αίσθηση συνοχής της σύνθεσης. Στο μεσοπάτωμα προβλέπονται βοηθητικές λειτουργίες, ενώ οι πέντε όροφοι φιλοξενούν τα δωμάτια των φοιτητών. Προτείνονται τρεις βασικοί τύποι: μονόκλινα, δίκλινα και δωμάτια για ΑμεΑ. Τα μονόκλινα προσφέρουν αυτονομία, ενώ τα δίκλινα οργανώνονται γύρω από έναν κοινό χώρο με καθιστικό και κουζίνα, ενισχύοντας τη συνεργασία και τη συλλογικότητα. Η τυπολογική ευελιξία και η δυνατότητα εναλλαγής στην επίπλωση επιτρέπουν την προσαρμογή σε διαφορετικά προφίλ φοιτητών.

Το αίθριο και οι κοινόχρηστοι χώροι λειτουργούν ως βασικοί πυρήνες κοινωνικής ζωής. Η οπτική και λειτουργική σύνδεση με το πράσινο καταργεί τα όρια ανάμεσα στη διαβίωση, τη μελέτη και την ψυχαγωγία, καλλιεργώντας ένα περιβάλλον συνεργασίας και αλληλεπίδρασης. Από τον 1ο έως τον 5ο όροφο υπάρχουν χώροι εκτόνωσης με φυτεμένους κήπους στις οροφές που ενισχύουν συνθήκες απομόνωσης και χαλάρωσης των φοιτητών.

Η πρόταση υιοθετεί μια ολοκληρωμένη βιοκλιματική στρατηγική, όπου ο προσανατολισμός, το αίθριο, οι φυτεμένοι κήποι λειτουργούν συνδυαστικά ώστε να εξασφαλίζουν άνετες και βιώσιμες συνθήκες διαβίωσης. Όλα τα περισσότερα δωμάτια αναπτύσσονται με νοτιοδυτικό προσανατολισμό, ώστε να αξιοποιείται ο ηλιασμός. Η υπερβολική ηλιακή ακτινοβολία κατά τους θερινούς μήνες ελέγχεται μέσω σκιάστρων από διάτρητη λαμαρίνα οι οποίες ρυθμίζουν την είσοδο φυσικού φωτός, μειώνουν την υπερθέρμανση και δημιουργούν ενδιαφέροντα παιχνίδια σκιάς
στις όψεις.

Το κεντρικό αίθριο λειτουργεί ως φυσικός πνεύμονας του συγκροτήματος, προσφέροντας διαμπερή αερισμό στα δωμάτια και τους κοινόχρηστους χώρους. Μέσω του φαινομένου καμινάδας, ο θερμός αέρας διοχετεύεται προς τα επάνω και αντικαθίσταται από δροσερότερο, ενισχύοντας τη φυσική ροή αέρα χωρίς μηχανικά μέσα. Παράλληλα, οι φυτεμένοι κήποι στις οροφές συνεισφέρουν στη θερμομόνωση, στη βελτίωση του μικροκλίματος ενώ μειώνουν τις επιπτώσεις του φαινομένου της
θερμικής νησίδας.

Η πρόταση μας για τις φοιτητικές εστίες του Δήμου Λεμεσού συνιστά μια σύγχρονη αρχιτεκτονική στάση, που επαναπροσδιορίζει τη φοιτητική ζωή ως εμπειρία συνεργασίας και κοινοτικής συνύπαρξης. Το συγκρότημα εντάσσεται αρμονικά στον αστικό ιστό, ενισχύει την αίσθηση κοινότητας, αξιοποιεί βιοκλιματικές αρχές και προσφέρει ποιοτικές υποδομές. Με αυτόν τον τρόπο ανταποκρίνεται όχι μόνο στις ανάγκες στέγασης, αλλά και στην ευρύτερη επιδίωξη μιας βιώσιμης και ποιοτικής κατοίκησης, καθιστώντας το έργο πρότυπο για τον σχεδιασμό φοιτητικών εστιών του μέλλοντος