Έπαινος: Φοιτητικές Εστίες στον Δήμο Λεμεσού

Αρχιτέκτονες: Χρίστος Παύλου, Χριστιάνα Καραγιώργη

 

– εστία
Ένας χώρος – αγκαλιά – εκεί όπου παραδοσιακά συμβαίνει η συνάντηση μιας “οικογένειας”. ‘Ενα καταφύγιο όπου κανείς επιστρέφει στη θαλπωρή του οικείου. Η εστία δεν είναι απλώς ένα κτήριο – είναι ένας “τόπος” που δυναμώνει τις σχέσεις, την ελεύθερη έκφραση, την αποδοχή και τη μετάθεση από το “περιορισμένο” στο “ανοικτό”. Είναι ο τόπος στον οποίο διαμορφώνεται η ταυτότητα και η έκφραση.

Στις εστίες συνυπάρχει το ιδιωτικό – στην εκφορά του ως ελάχιστη κατοίκηση, με το δημόσιο – το περιβάλλον όπου οι νέοι έχουν την ανάγκη να επικοινωνήσουν, να συνδιαλλαγούν και να ανταλλάξουν βιωματικές εμπειρίες του κοινού τους χώρου. Σε αυτό το χωρικό πλαίσιο θα πρέπει να ενυπάρχει η έννοια της πόλης ως δυναμικό περιβάλλον που διαδρά με τον άνθρωπο.

“η εστία μας δεν είναι απλώς κτήριο – είναι ο τόπος όπου οι διαδρομές συναντούνται….” Οι νέοι χρειάζονται ένα περιβάλλον στο οποίο να έχουν δυνατότητες συνάντησης, έκφρασης, κοινωνικότητας και δημιουργικότητας αλλά και αναστοχασμού μέσα από την προοπτική του κάθε ενός προσωπικά. Η εστία θα πρέπει να γεφυρώνει κοινωνικά – να είναι συμπεριληπτική και όχι αποκλεισμένη ή γκετοποιημένη ως κλειστή δομή. Η ανοικτότητά της προς τη γειτονιά και το αστικό τοπίο αποτελεί προϋπόθεση της κοινωνικής εξέλιξης των νέων εντός ενός ευρύτερου περιβάλλοντος το οποίο μπορούν να μεταβάλουν θετικά. Παράλληλα θα πρέπει να παρέχει το ελάχιστο καταφύγιο του “δωματίου” έτσι ώστε καθένας να μπορεί να παράξει “γνωσιακά” σε ένα ιδιωτικό περιβάλλον χωρίς να νιώθει απομονωμένος ή εγκλωβισμένος.

Το πράσινο ως βασικό συνθετικό στοιχείο της πρότασης αποτελεί χωρικό καταφύγιο σε ένα περιβάλλον που ενισχύει τη μνήμη. Η αστικοποίηση του πρασίνου συστήνει ένα περιβάλλον οικειότητας και άνεσης. Η προώθηση της κοινής ευημερίας του “πράσινου τόπου” βοηθά στη δημιουργία μιας πόλης χωρίς αποκλεισμούς.

– πρόταση
Η αρχιτεκτονική σύνθεση μετατρέπει σε xωρικότητα τις έννοιες της διαφάνειας, της αγκαλιάς και της συνάντησης αλλά και της δυνατότητας ανασκόπησης χωρίς τον αποκλεισμούς – μέσα από μια πρόθεση της σηματοδότησης του αστικού – της ταυτότητας – εντός του πλαισίου που συστήνει η ‘πόλη’ σε κάθε προοπτική του χώρου. Η μορφή αναπτύσσεται μέσα από ένα συγκρότημα κτηριακών όγκων και κενών σε μια σύμπλεξη κλειστών (ιδιωτικών) και ανοικτών (δημόσιων) χώρων. Η πόλη εισρέει εντός του συγκροτήματος διαμέσου της ελεύθερης οπτικής δυνατότητας και διαμέσου της κίνησης, ενώ αποκαλύπτεται προοπτικά μέσα από την κάθε μονάδα κατοίκησης ή τους κοινόχρηστους χώρους. Έτσι η αστικότητα φιλτράρεται προς τα μέσα και γίνεται οικεία.

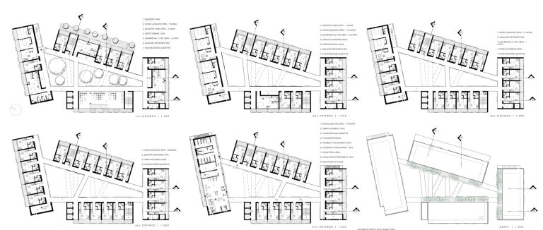
Τέσσερεις όγκοι αποτελούν μαλακά όρια του συγκροτήματος – ανοικτές βιώσιμες δομές. Μέσα από τη διάσπαση ενός δυνητικά συμπαγούς κτηριακού όγκου, δημιουργούνται διαμπερείς διαδρομές, χώροι συνάθροισης, χώροι πρασίνου, και κοινόχρηστοι χώροι που συνδιαλέγονται με την πόλη. Οι κινήσεις προς τους χώρους διαμονής οργανώνονται εσωτερικά ενώ οι ιδιωτικοί ημιυπαίθριοι ιδιωτικοί χώροι προσανατολίζονται προς την πόλη.

Στο κέντρο εγγράφεται ένα πράσινο αίθριο το οποίο επεκτείνεται ως “κενό” στο ισόγειο μέχρι και το δρόμο. Διαμέσου του πράσινου – κενού η επικοινωνία με την πόλη επιτυγχάνεται ως προοπτική φυγή από όλα τα σημεία του ισογείου – κλειστούς και ανοικτούς χώρους. Έτσι το κέντρο λειτουργεί ως “αστικός πυρήνας” αφού εκεί συμβαίνει η κίνηση, η δράση και η δημόσια ζωή των ενοίκων. Η ενεργοποίηση της “ανοικτότητας” του ισογείου ενισχύει δυναμικά την την αλληλεπίδραση με τον δημόσιο χώρο.

– λειτουργίες
Οι μονάδες κατοίκησης χωροθετούνται στην περίμετρο των κτηρίων και του τεμαχίου. Όλα τα δωμάτια απολαμβάνουν απρόσκοπτη θέα της πόλης και του Γραμμικού πάρκου. Στους ορόφους αναπτύσσονται οι μονάδες κατοίκησης στις οποίες η πρόσβαση γίνεται μέσα από ημιυπαίθριους διαδρόμους. Η δυναμική των κινήσεων ενισχύεται από γέφυρες που διασχίζουν κάθετα το κενό (αίθριο) ανάμεσα στα κτήρια. Οι γέφυρες αποτελούν μέσο “αισθητικοποίησης” της κοινωνικότητας – του γεγονότος το οποίο συμβαίνει εντός του συγκροτήματος αλλά και χώρο στάσης για μικρές παρέες που οι συγκυρίες της κατοίκησης ενθαρρύνουν.

Η πιλοτή και το αίθριο παρέχουν δυνατότητες ξεκούρασης ή καλλιτεχνικών δράσεων των φοιτητών αφού οι χώροι σχεδιάζονται με πράσινα δάπεδα και καθιστικά. Στο ισόγειο και σε γειτνίαση με το δρόμο και τον ποταμό χωροθετείται η υποδοχή και ο καθιστικός χώρος των φοιτητών σε δύο επίπεδα. Η διαφάνεια των όγκων ενθαρρύνει την επικοινωνία με το συγκρότημα αλλά και με την πόλη στα δυτικά. Τα δωμάτια αναπτύσσονται στους ορόφους με τα δωμάτια των ΑΜΕΑ να διασκορπούνται σκόπιμα για λόγους ανάμειξης του πληθυσμού των φοιτητών.

Ο χώρος παιγνιδιών και αναγνωστηρίου προτείνεται στο πίσω κτήριο. Μέσα από αυτούς τους χώρους κανείς μπορεί να προεκτείνει το βλέμμα μέχρι το ποτάμι. Το γυμναστήριο χωροθετείται στον 5ο όροφο. Ο δημόσιος χαρακτήρας του το καθιστά πόλο έλξης του πληθυσμού της εστίας. Οι ροές κινήσεων προς το γυμναστήριο ενισχύουν ένα ζωντανό κτήριο κθ’ όλη τη διάρκεια της ημέρας.

-αειφορία
Ο σχεδιασμός προτείνει ένα αυτοτροφοδοτούμενο ενεργειακά κτήριο με θετικό πρόσημο. Το κτιριακό αποτύπωμα ελαχιστοποιείται ενσωματώνοντας βιώσιμες πρακτικές.

Ενισχύονται συνθήκες μικροκλίματος με διαμπερείς χώρους – κενά μεταξύ των κτηρίων αλλά και μέ το αίθριο και την πιλοτή. Το ισόγειο δεν διαστρώνονται αλλά φυτεύεται. Μεγάλες υδατοπερατές επιφάνειες στο ισόγειο ενισχύουν την αστική αειφορία. Η φύτευση βασίζεται σε φυλλοβόλα δέντρα (πλάτανους) ενώ εμπλουτίζεται με ελιές, μαστιχόδεντρα και θάμνους χαμηλής άρδευσης. Το αίθριο και τα κτήρια αυτοσκιάζονται διατηρώντας χαμηλό θερμικό φορτίο το καλοκαίρι ενώ θερμαίνονται το χειμώνα μέσω του ηλιασμού λόγω της φυλλόπτωσης των δέντρων.

Οι περιμετρικές τέντες σε ένα δεύτερο επίπεδο δημιουργούν δυνατότητες ελεγχόμενου ηλιασμού αποτελώντας ένα μαλακό κέλυφος που βελτιστοποιεί την ενεργειακή απόκριση του κτηρίου. Στην πρόταση πληρούνται οι προδιαγραφές θερμομόνωσης κελύφους. Η χρήση ανεξάρτητων κλιματιστικών μονάδων και άλλων η/μ λειτουργιών τροφοδοτείται από ηλεκτρική ενέργεια με χρήση ΑΠΕ.

Η πρόταση συστήνει ένα σύγχρονο μοντέλο πράσινης κατοίκησης το οποίο είναι ανοικτό, ευέλικτο και συνεκτικό για την πόλη. Ένα συγκρότημα που ενθαρρύνει την συνύπαρξη σεβόμενο την ιδιωτικότητα. Μία μικρο-πολιτεία όπου ο κοινός τόπος είναι ένας αειφόρος χώρος κίνησης, επικοινωνίας και συνέυρεσης, μέσα από τον οποίο κανείς μπορεί να ανακαλύψει προοπτικά κάτι για τον εαυτό του και πέρα από αυτόν. Ένας τόπος όπου η αστική εικόνα και ζωή εισρέει “εντός” σαν υπενθύμιση για το μέλλον και την προοπτική των κατοίκων του.