Διώροφη Κατοικία σε Περιοχή Ειδικού Χαρακτήρα στη Λάρνακα

Κατηγορία Δ - Ειδικό Βραβείο Κριτικής Επιτροπής

AMSA Architects: Νεκτάριος Αυξεντίου, Ανάργυρος Μουγιάκος, Ζωή Στασινοπούλου

Οι χρήστες, στην προκειμένη περίπτωση και Αρχιτέκτονες της κατοικίας, βρίσκονταν σε αναζήτηση μόνιμης στέγασης στο κέντρο της πόλης για αρκετά χρόνια. Η προσφορά επιλογών αποδείχθηκε περιορισμένη, λόγω των πολύ υψηλών τιμών των διαθέσιμων διαμερισμάτων και οικοπέδων, σε μια περιοχή μεγάλης δυσκολίας πρόσβασης σε προσιτή στέγη.

Η ευκαιρία παρουσιάστηκε με την εύρεση ενός πολύ μικρού οικοπέδου (163μ2) στην περιοχή του Αγίου Ιωάννη. Τα πολεοδομικά χαρακτηριστικά στη Ζώνη αυτή και κυρίως η δυνατότητα για συνεχές σύστημα δόμησης, επέτρεψαν την αξιοποίηση ενός τόσο μικρού τεμαχίου. Ο οικιστικός πυρήνας του Αγίου Ιωάννη, είναι μία από τις ιστορικές περιοχές της Λάρνακας, οι οποίες κατοικούνται συνεχόμενα από τα αρχαία χρόνια, όπως μαρτυρούν οι πρόσφατες ανασκαφές.

Σήμερα, η περιοχή κατοικείται από ανθρώπους μεγάλης ηλικίας, οι οποίοι μεγάλωσαν στην περιοχή, Αφρικανούς και Ασιάτες μετανάστες, νέες οικογένειες που κληρονομούν τα παλιά σπίτια των παππούδων και πρόσφυγες στους οποίους παραχωρήθηκαν κατοικίες Τουρκοκυπρίων που ζούσαν εκεί.

Το κτισμένο περιβάλλον αποτελείται κυρίως από ισόγειες κατοικίες των αρχών του προηγούμενου αιώνα, γύρω από την Εκκλησία του Αγίου Ιωάννη. Υπάρχουν επίσης διώροφα κτίσματα αυτής της περιόδου που συνυπάρχουν με νεότερες κατασκευές και πολλά κενά που προέκυψαν από κατάρρευση ή κατεδάφιση παλαιών κτισμάτων.

Ο ειδικός χαρακτήρας της περιοχής, κατά την άποψη μας, εντοπίζεται στην κλίμακα κυρίως των κτισμάτων και στην τυπολογική αναφορά τους στις εσωτερικές αυλές και όχι τόσο στη μορφολογική συνέχεια συνόλων. Το οικόπεδο, το οποίο είναι σε υποχώρηση από τον δρόμο, λόγω ρυμοτομίας που έχει παραχωρηθεί τοπικά, έχει ορθογώνιο σχήμα με πλάτος 8.5μ πάνω στον δρόμο και βάθος 19μ.

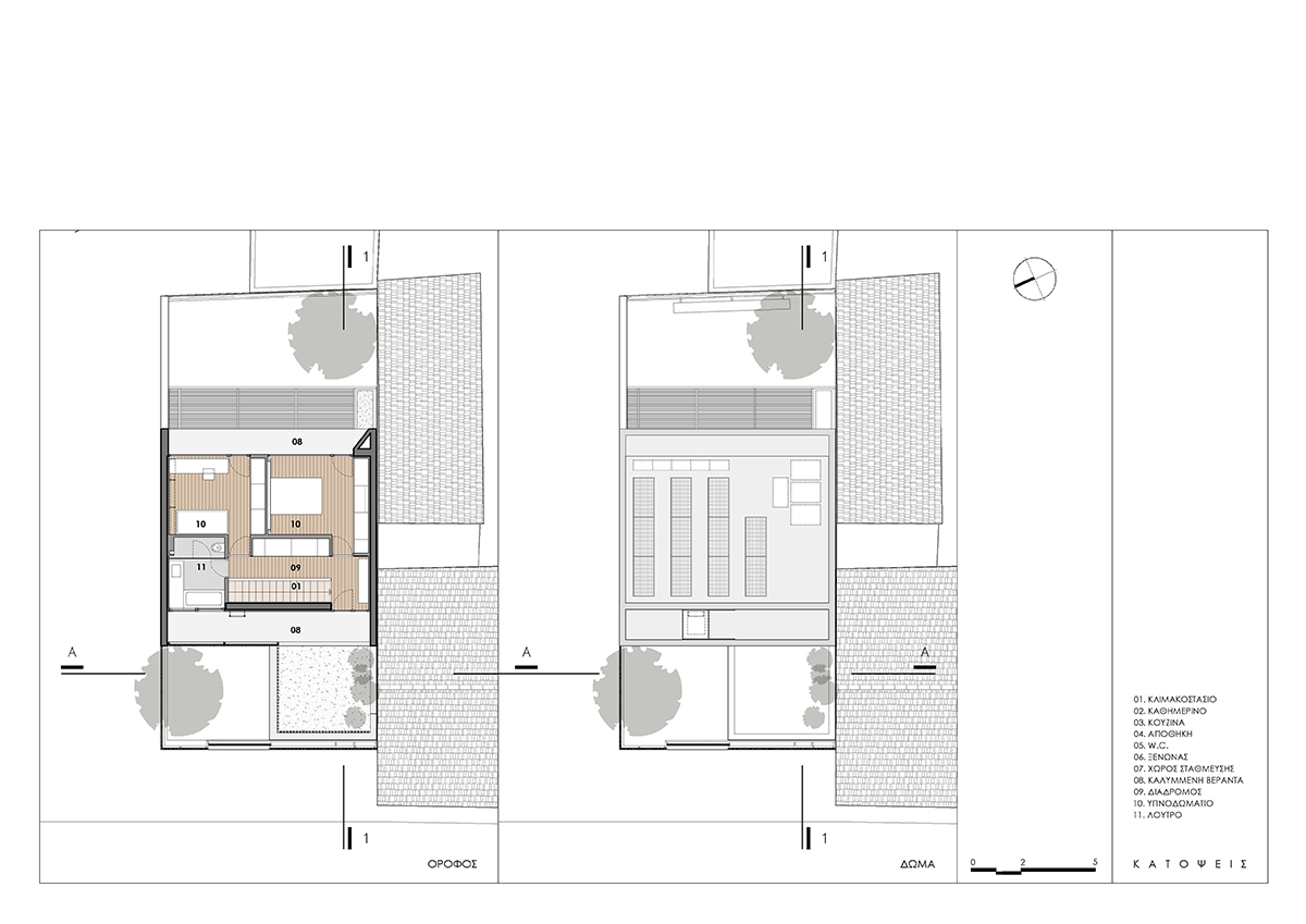
Η πρόσβαση γίνεται μέσω ενός περιφραγμένου προαυλίου υπαίθριου χώρου. Η κατοικία οργανώνεται στο ισόγειο με τους δύο εξωτερικούς τοίχους, οι οποίοι περικλείουν τον καθημερινό χώρο της κατοικίας και την αυλή – κήπο σε μια ενιαία οπτικά και λειτουργικά ενότητα με πλάτη τη σκάλα και τη βιβλιοθήκη. Σε συνέχεια του χώρου αυτού προς τον δρόμο, χωροθετείται ένας μικρός ξενώνας. Στον όροφο οργανώνονται 2 υπνοδωμάτια που βλέπουν προς τον κήπο ανατολικά και προστατευμένος ημιϋπαίθριος και υπαίθριος φυτεμένος χώρος που βλέπει προς τον δρόμο.

Οι όψεις οργανώνονται σε δύο οριζόντιες ζώνες, αυτές του ισογείου και του ορόφου, με την διαφοροποίηση των χρηματισμών στα υλικά να δίνει έμφαση σε αυτή την επιλογή. Στο ισόγειο οι σκουρόχρωμες επιφάνειες σκυροδέματος και δόκιμες αλουμινίου εναλλάσσονται στον όροφο με ανεπίχριστες επιφάνειες σκυροδέματος.

Εμβαδόν | 130m2
Αποπεράτωση 04 | 2022
Κόστος €170.000 + ΦΠΑ