Έπαινος: Δημιουργία Κέντρου Περιβαλλοντικής Ενημέρωσης – Περιοχή Δικτύου NATURA 2000 Αλυκές Λάρνακας

Αρχιτέκτονες: Κυριάκος Μιλτιάδου, Χρίστος Χατζηχρίστου

Ένας φιλοξενούμενος που καλωσορίζει

ΚΕΝΤΡΙΚΗ ΙΔΕΑ
Ο ρόλος του Κέντρου Περιβαλλοντικής Ενημέρωσης να “συστήνει” τις Αλυκές της Λάρνακας στους επισκέπτες του με ένα δικό του ιδιαίτερο τρόπο χωρίς να ξεχνά ότι δεν είναι “του σπιτιού” αλλά ότι είναι και αυτός “καλεσμένος”. Χρησιμοποιώντας αρχιτεκτονικά μέσα η πρόταση, αξιοποιώντας τα χαρακτηριστικά του ιδίου του χώρου, διαπραγματεύεται σχέσεις όπως αυτή μεταξύ της πόλης και του πάρκου, του δομημένου και του φυσικού, της πληροφόρησης και των εμπειριών.

ΚΤΗΡΙΟ ΚΠΕ
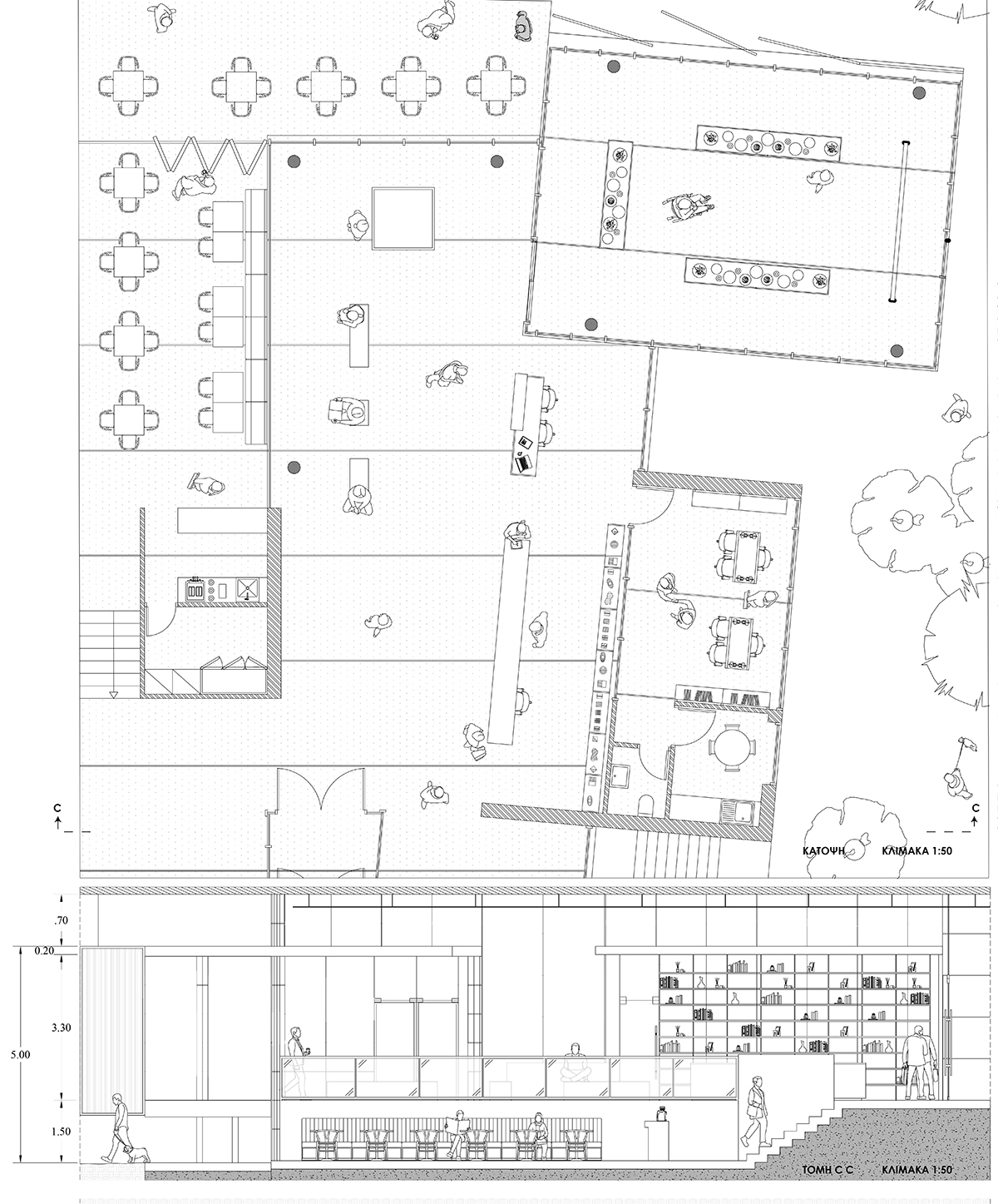
Σαν μια αλιζαύρα που έχει το σώμα ελαφρά ανασηκωμένο από το έδαφος και την κεφαλή να τεντώνεται ψηλότερα για να έχει όσο το δυνατό καλύτερη οπτική επαφή με το περιβάλλον της, το προτεινόμενο κτήριο αποτελείται από μια ελαφρά ανυψωμένη πλατφόρμα στην οποία βρίσκονται, σε σπονδυλωτή κατάταξη, οι διάφοροι χώροι σαν ανεξάρτητα “κουτιά”. Και όπως η αλιζαύρα, έτσι και η σύνθεση παρουσιάζει μια κλιμάκωση στο σημείο με την καλύτερη θέα προς τις αλυκές. Εκεί τοποθετούνται ο χώρος υποδοχής και η αίθουσα εκθεμάτων η οποία φαντάζει να “ποταβρίζεται” έξω από το υπόλοιπο κτήριο διαφεντεύοντας την γύρω περιοχή. Σαν ένα άλλο παρατηρητήριο, παίρνει μια θέση που του επιτρέπει οπτική πρόσβαση προς τις Αλυκές αλλά, τόσο με την ογκοπλασία όσο και με τα υλικά και τα χρώματα του, συνδιαλέγεται με σεβασμό με το υφιστάμενο τοπίο.

Η ΠΛΑΤΦΟΡΜΑ
Ανυψώνεται στο ενάμισι μέτρο τόσο για να προσφέρει μια καλύτερη θέα των αλυκών αλλά και για να μην διακόπτει τη ροή του εδάφους, σε μια προσπάθεια να μειωθεί στο ελάχιστο δυνατόν οποιαδήποτε αρνητική επίδραση στο τοπικό οικοσύστημα. Ενώνεται με το έδαφος μέσω μεταλλικών ραμπών και κλιμακοστασίων που και αυτά έχουν το ελάχιστο αποτύπωμα. Φιλοξενεί πάνω της όλους τους χώρους εκτός από την καφετέρια η οποία είναι προσγειωμένη στο έδαφος.

Τα “κουτιά”
Ξεχωρίζουν σαν ανεξάρτητοι όγκοι που κάθονται πάνω στην πλατφόρμα. Ενώνονται στην μια πλευρά με το εσωτερικό ενώ στην άλλη πλευρά προβάλλουν έξω από το διαφανές περίβλημα που καθορίζει τον εσωτερικό χώρο. Δρουν σαν μεσάζοντες μεταξύ τη νότιας πλευράς που ανοίγεται προς τις αλυκές και του βόριου μέρους του πάρκου που συνορεύει με την πόλη. Η σύνθεση επιτρέπει την μελλοντική μεγέθυνση οποιουδήποτε χώρου προς τα βόρεια χωρίς να επηρεάζεται το υπόλοιπο κτήριο.

Είσοδος και Χώρος Υποδοχής
Τοποθετείται στην πιο προνομιούχα θέση του οικοπέδου και σε συνδυασμό με την διαφάνεια του περιβλήματος του, ο χώρος αυτός συνάπτει οπτικές συνδέσεις με το τοπίο. Το πρόπλασμα της περιοχής μπορεί έτσι να συσχετιστεί άμεσα με τον χώρο που απεικονίζει.

Αίθουσα Εκθεμάτων
Μαζί με το χώρο υποδοχής απολαμβάνει την πιο πανοραμική θέα της περιοχής. Για τη διατήρηση της ευελιξίας στη χρήση του χώρου, αντί για μόνιμων τοίχων, προτείνεται η χρήση κινητών στοιχείων για την έκθεση αντικειμένων ή την προβολή δισδιάστατων εικόνων. Μερικά από αυτά έχουν βάση με τροχούς στο πάτωμα ενώ άλλα κρέμονται από το ταβάνι. Η θέση τους μπορεί να ρυθμιστεί ανάλογα με την έκθεση που φιλοξενείται. Ο φυσικός φωτισμός ρυθμίζεται από εσωτερικά συστήματα σκίασης ανάλογα με τις ανάγκες της έκθεσης. Αν μελλοντικά χρειαστεί, ο χώρος μπορεί να μεγαλώσει τόσο σε εμβαδόν αλλά και σε ύψος, χωρίς να επηρεαστεί το υπόλοιπο κτήριο.

Χώρος Καταστήματος και Εκδοτήριο Εισιτηρίων
Και οι δύο αυτοί χώροι αποτελούν αναπόσπαστο μέρος του χώρου υποδοχής ικανοποιώντας ταυτόχρονα τις δικές τους λειτουργικές ανάγκες.

Χώρος Γραφείων – Διεύθυνση + Γραμματεία + Χώρος Υγιεινής + Κουζίνα Προσωπικού
Η θέση τους επιτρέπει την εποπτεία του χώρου υποδοχής και του καταστήματος προσφέροντας ταυτόχρονα την δυνατότητα μιας σχετικής απομόνωση από το υπόλοιπο του εσωτερικού και μια οπτική επαφή με το πιο ήσυχο βόρειο μέρος του πάρκου

Καφετερία και Υπαίθρια Εστίαση 
Ο μόνος χώρος στο επίπεδο του εδάφους για να μπορεί να ενώνεται με το δυτικό δενδροφυτεμένο μέρος του πάρκου αλλά και για να μην εμποδίζει την απρόσκοπτη θέα των Αλυκών από τον χώρο υποδοχής.

Αίθουσα Προβολών και Διαλέξεων
Άμεσα προσβάσιμη από τον χώρο υποδοχής. Η εσωστρέφεια του χώρου δυνητικά αναιρείται αφού η νότια εσωτερική πλευρά μπορεί να ανοίξει και να ενωθεί με τον πλατύ χώρο κυκλοφορίας για να φιλοξενήσει εναλλακτικές διοργανώσεις. Ο φυσικός φωτισμός ρυθμίζεται από εσωτερικά συστήματα σκίασης ανάλογα με τις ανάγκες της δραστηριότητας που φιλοξενείται στο χώρο.

Βιβλιοθήκη
Τοποθετείται στο μέσο του κτηρίου δίπλα από το εργαστήριο. Μπορεί δυνητικά να απομονωθεί αλλά και να ενωθεί με το υπόλοιπο κτίριο στο εσωτερικό αλλά και οπτικά με το πάρκο στα βόρεια.

Εργαστήριο
Μεταξύ της βιβλιοθήκης και της αίθουσας περιβαλλοντικής εκπαίδευσης λειτουργεί συνεργικά μαζί τους ενώ μπορεί δυνητικά να ενωθεί με την αίθουσα εκπαίδευσης όποτε αυτό χρειαστεί.

Αίθουσα Περιβαλλοντικής Εκπαίδευσης
Βρίσκεται στο πιο απόμακρο σημείο του κτηρίου και σε συνδυασμό με τους γειτονικούς χώρους του εργαστηρίου και της βιβλιοθήκης, μπορεί να λειτουργεί σχετικά ανεξάρτητα από το τι μπορεί να διαδραματίζεται στους πιο κοινωνικούς χώρους της εισόδους και της καφετέριας στην άλλη άκρη του κτηρίου. Έχει άμεση πρόσβαση στο νότιο εξωτερικό μέρος του πάρκου προς τις Αλυκές. Ο φυσικός φωτισμός ρυθμίζεται από εσωτερικά συστήματα σκίασης ανάλογα με τις ανάγκες του είδους εκπαίδευσης.

Χώρος Ηλεκτρομηχανολογικών εγκαταστάσεων + Χώρος server + Χώροι Υγιεινής επισκεπτών + Δωμάτιο καθαρίστριας + Αποθήκη Εξοπλισμού και Αναλώσιμων υλικών
Συγκεντρώνονται σε ένα “κουτί” που τοποθετείται μεταξύ των πιο “ανοικτών” χώρων της υποδοχής και του καταστήματος στα δυτικά και τους πιο “κλειστούς” χώρους εκπαίδευσης και έρευνας στα ανατολικά.

Μηχανοστάσιο και μικρή αποθήκη υλικών
Τοποθετείται κάτω από την πλατφόρμα με εύκολη πρόσβαση από το εσωτερικό του κτήρίου. Λόγω της ύψωσης του κτηρίου η εκσκαφή που απαιτείται είναι ελάχιστη.

Το περίβλημα
Ένα εξ ολοκλήρου διαφανές κάθετο όριο που ταξιδεύει σχετικά ανεξάρτητα από τα κουτιά μεταξύ της πλατφόρμας και του στεγάστρου. Λόγω της διαφάνειας, η σχέση μεταξύ του μέσα και του έξω είναι ρευστή και ρυθμίζεται ανάλογα με τις ανάγκες του χώρου από εξωτερικά σκίαστρα.

Η οροφή
Λεπτή με το δικό της ανεξάρτητο σχήμα και με επαφή μόνο με το γυάλινο περίβλημα, μοιάζει να αιωρείται λες στιγμιαία πάνω από την πλατφόρμα και τα “κουτιά”.

Υλικά
Μεταλλική κατασκευή με επένδυση από οξειδωμένη λαμαρίνα και ξύλο.

ΥΠΑΙΘΡΙΟΙ ΧΩΡΟΙ- ΠΕΡΙΒΑΛΛΟΝΤΑΣ ΧΩΡΟΣ ΚΠΕ
Υιοθετείται μια μινιμαλιστική προσέγγιση βάση της οποίας οι υφιστάμενοι διάδρομοι διακίνησης ενώνονται με νέα κύρια και δευτερεύοντα μονοπάτια τα οποία προσφέρουν επιλογές θέασης, απομόνωσης ή κοινωνικής συνύπαρξης.

Κύρια και Δευτερεύοντα μονοπάτια, δένδρα και θάμνοι
Τα κύρια μονοπάτια δημιουργούν ευθείς κύριους διαδρόμους διακίνησης που ενώνουν σημαντικά στοιχεία του πάρκου μεταξύ τους. Τα δευτερεύοντα πιο καμπύλα μονοπάτια προκύπτουν μεταξύ της φύτευσης κυρίως χαμηλών φυτών που ευδοκιμούν στην περιοχή και έρχονται σε αντίθεση με τις πιο πλατιές ευθείες των κύριων διαδρόμων, επιτρέποντας έτσι την απρόσκοπτη θέα προς της αλυκές. Όλα τα δένδρα διατηρούνται, κάποιες ελιές στο χώρο στάθμευσης μεταφυτεύονται, ενώ ακακίες και άλλα ανεπιθύμητα είδη αφαιρούνται.

Υπαίθριος χώρος για εκπαιδευτικούς και ψυχαγωγικούς σκοπούς
Τοποθετείται δίπλα από τον άξονα που ενώνει τοι κτίριο του ΚΠΕ με τον πεζόδρομο γύρω από τις αλυκές σε σημείο και με προσανατολισμό που εκμεταλλεύεται από τη μια το καθαρό οπτικό πεδίο στα νότια και από την άλλη το δενδροφυτεμένο χώρο στα βόρεια. Πέτρινοι ογκόλιθοι σαν μέρος της αστικής επίπλωσης μπορούν να φιλοξενήσουν ομάδες και τους συνοδούς τους για ενημέρωση και συντονισμό.

Πτηνοπαρατηρητήριο
Το κουβούκλιο παρακολούθησης είναι προσβάσιμο από όλους από μια ράμπα που ξεκινά ανεπαίσθητά από ένα ψηλότερο σημείο της πλαγιάς αλλά ενσωματώνει και σκαλοπάτια τα οποία προσφέρουν πρόσβαση και από την βάση του παρατηρητηρίου στην άλλη άκρη. Σαν ένα μικρό αμφιθέατρο δίνει έτσι την ευκαιρία σε άτομα ή ομάδες να τα χρησιμοποιήσουν σαν σημείο θέσης, άθλησης ή για τη διεξαγωγή ενημερωτικών ή άλλων κοινωνικών συγκεντρώσεων.

Διατήρηση της μνήμης του χώρου σαν λεπροκομείο
Τα αποτυπώματα των κτηρίων του λεπροκομείου και των κτηρίων που θα κατεδαφιστούν διατηρούνται τόσο για να εξιστορούν την πορεία του χώρου στον χρόνο, αλλά και για να υπηρετούν σαν σημεία μικρών συναθροίσεων, άθλησης και θέασης. Το αποτύπωμα καλύπτεται από διάτρητους κυβόλιθους.

Αστική επίπλωση
Προτείνεται η χρήση πέτρινων μονολιθικών όγκων διαφόρων μεγεθών για την δημιουργία αστικών “επίπλων” τα οποία θα μοιάζουν σαν γλυπτά ή σαν διάφορες τυχαίες συναρμολογήσεις. Ακριβώς λόγω της ασάφειας σχετικά με τον προορισμό τους, οι χρήστες του πάρκου μπορούν να τα οικειοποιηθούν με εναλλακτικούς αντί συμβατικούς τρόπους ατομικά ή συλλογικά, για σκοπούς κοινωνικοποίησης, άθλησης ή απλά ξεκούρασης.

Βιοκλιματική προσέγγιση
Σε αυτή συμβάλλουν το μακρόστενο σχήμα του κτηρίου, το άνοιγμα στα νότια και το σχετικό κλείσιμο στα βόρεια, η χρήση σκιάστρων, και η οριζόντια διαμπερότητα του.

Δομικό Σύστημα
Η στατική μελέτη θα εκπονηθεί σύμφωνα με τις ισχύουσες διατάξεις του Κυπριακού Ευρωκώδικα (EC8). Ο φέρων οργανισμός του κτηρίου θα αποτελείται από κάναβο μεταλλικών υποστυλωμάτων κυκλικής διατομής και μεταλλικών δοκών τύπου Universal Beams (533 × 165 mm), οι οποίες θα πλαισιώνουν τα υποστυλώματα. Τα υποστυλώματα θα εδράζονται σε πασσάλους (piles) που θα φυτεύονται στο έδαφος, με στόχο τη μη παρεμπόδιση του φέροντος και λειτουργικού χώρου του κτιρίου. Όλες οι χαλύβδινες κατασκευές θα μελετηθούν και θα κατασκευαστούν σύμφωνα με τα ευρωπαϊκά πρότυπα EN, βάσει των προδιαγραφών του εγχειριδίου “National Structural Steelwork Specification for Building Construction”.

Ηλεκτρομηχανολογική Προσέγγιση
Η ηλεκτρολογική εγκατάσταση θα είναι πλήρης και θα κατασκευαστεί / ελεγχθεί στη βάση της 17ης Έκδοσης των Κανονισμών του ΙΕΕ. Θα συμπεριλαμβάνει διανομή ισχύος, φωτισμό, σύστημα αυτοματισμού, δομημένη καλωδίωση και συστήματα ασφαλείας. Στους κοινόχρηστους χώρους διακίνησης προτείνεται κεντρικό σύστημα κλιματισμού. Στις υπόλοιπες πιο ιδιωτικές μονάδες όπως τα εργαστήρια συστήνεται κλιματισμός με ανεξάρτητες μονάδες διαιρεμένου τύπου. Η παροχή ζεστού και κρύου νερού θα επιτυγχάνεται με την εγκατάσταση ντεποζίτων νερού στη στάθμη του υπογείου, κυλίνδρους ζεστού νερού με ηλιακά πλαίσια στην οροφή του κτηρίου καθώς και πιεστικό σύστημα για να καλύπτει όλο το κτήριο σε ζώνες.