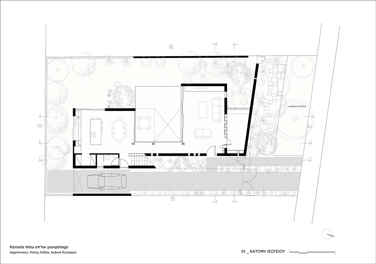
Κατοικία πίσω απ’ τον Μαντρότοιχο

Έπαινος - Κατηγορία Β’ Έργο Νέου Αρχιτέκτονα

Αρχιτέκτονες: Λούης Λοϊζου, Ιωάννα Ευαγόρου

 

Κεντρική Ιδέα
Η πρόταση επιδιώκει να επαναπροσδιορίσει την έννοια του “μαντρότοιχου”, ενός στοιχείου οικείου στον τόπο μας, όχι ως φράγμα, αλλά ως μέσο φιλτραρίσματος και ιδιωτικότητας, ενσωματωμένου στο πανταχόθεν ελεύθερο σύστημα δόμησης που χαρακτηρίζει τις πλείστες οικιστικές περιοχές του νησιού. Η υποχώρηση της κατοικίας σε σχέση με το οδικό σύνορο και η συνειδητή επιλογή “σφράγισης” του κτηρίου προς τον δρόμο, με ελάχιστα, στοχευμένα ανοίγματα και σχισμές, προσφέρει την επιθυμητή ιδιωτικότητα και στρέφει ταυτόχρονα τους εσωτερικούς χώρους της κατοικίας προς τον νότο και το φως.

Διάταξη Χώρων και Κίνηση
Η πρόσβαση στην κατοικία γίνεται μέσω του κήπου, χωρίς να μεσολαβεί οποιοδήποτε αυστηρό όριο μεταξύ δημόσιου και ιδιωτικού. Η κίνηση δίπλα από τον εξωτερικό – σχεδόν – τυφλό τοίχο του ισογείου ορίζει το κατώφλι που επιστεγάζεται από τον τοίχο του κλιμακοστασίου, ο οποίος “ανασηκώνεται” για να σηματοδοτήσει την είσοδο και να συνεχίσει στην πρόσοψη ως το όριο του ορόφου, που παρέχει ιδιωτικότητα στο κυρίως υπνοδωμάτιο.

Το κεντρικό αίθριο, ως καλυμμένη και ακάλυπτη βεράντα, αποτελεί τον πυρήνα γύρω από τον οποίο οργανώνονται οι χώροι διημέρευσης. Ο χώρος εισόδου και το καθιστικό ανοίγονται προς τη βεράντα και τον νότιο προσανατολισμό, ενώ τραπεζαρία και κουζίνα συνυπάρχουν στην απέναντι πλευρά. Οι γυάλινες επιφάνειες στην περίμετρο της βεράντας εντείνουν την οπτική συνέχει εσωτερικού και εξωτερικού χώρου, ενώ οι συρόμενες πόρτες δίνουν τη δυνατότητα πλήρους χωρικής ενοποίησης και ρευστότητας των χώρων του ισογείου.

Δυτικά, απέναντι από το αίθριο, ο τοίχος περίφρασης υψώνεται στο μέγιστο επιτρεπόμενο ύψος, ως άλλος ένας «μαντρότοιχος», ώστε να ορίσει την εσωτερική αυλή και να προστατεύει τις υπαίθριες δραστηριότητες από τα γειτονικά βλέμματα. Στη βόρεια πλευρά του ισογείου χωροθετείται το γραφείο, ένας εσωστρεφής χώρος, ο οποίος διαχωρίζεται από το καθιστικό με τον διάτρητο τοίχο – βιβλιοθήκη. Στραμμένο βορειοδυτικά, απολαμβάνει σταθερό, διάχυτο φυσικό φως, με θέα και επέκταση προς έναν κρυφό, απομονωμένο κήπο που ορίζεται από τους περιμετρικούς ψηλούς τοίχους.

Ο όροφος διακρίνεται σε δύο μέρη, τη ζώνη των γονέων και τη ζώνη των παιδιών. Το κυρίως υπνοδωμάτιο αποτελείται από χώρους που διαχωρίζονται με ασαφή όρια, που αφήνουν τον χώρο ενοποιημένο. Η μία όψη της ιματιοθήκης αποτελεί την “πλάτη” του χώρου ύπνου, ως ένα χαμηλό διαχωριστικό, ενώ στα βόρεια ο χώρος ύπνου “μεγαλώνει” οπτικά και χωρικά μέχρι τον τοίχο της βεράντας, που προσφέρει προστασία και, ταυτόχρονα, οπτικές φυγές προς τον ουρανό και το γύρω τοπίο.

Στη ζώνη των παιδιών, όλες οι προσβάσεις στους χώρους βρίσκονται στο σταυροδρόμι του ανατολικού ανθώνα. Το άνοιγμα του ανθώνα, ως το μοναδικό μεγάλο άνοιγμα στην πλαϊνή όψη, αφήνει το φως να κινηθεί γλυπτικά στο διπλό ύψος του κλιμακοστασίου, ενώ η φύτευση λειτουργεί ως φίλτρο προστασίας του μέσα και του έξω.

Υλικά
Η επιλογή των υλικών της κατοικίας βασίζεται στην ειλικρίνεια και στον διάλογο μεταξύ τους. Στα κατακόρυφα στοιχεία και τις εξωτερικές τοιχοποιίες επικρατεί το λευκό, ενώ η διαφοροποίηση του υλικού των ταβανιών από ανεπίχριστο σκυρόδεμα εντείνει την έννοια του κελύφους. Το ξύλο κυριαρχεί στα πατώματα, τόσο του ισογείου, όσο και του ορόφου, προσφέροντας τη ζητούμενη ζεστασιά στους ιδιοκτήτες. Η πατητή τιμεντοκονία ορίζει τους χώρους κίνησης (διάδρομο και κλιμακοστάσιο) ως μια συνεχής πτύχωση και συνομιλεί με τα ταβάνια από ανεπίχριστο σκυρόδεμα.

Σε επιλεγμένα σημεία της εξωτερικής τοιχοποιίας ενσωματώνονται μικρά και μεγαλύτερα τετράγωνα ανοίγματα από υαλότουβλα, που αφήνουν δέσμες φωτός να εισχωρήσουν στο εσωτερικό κατά τις πρωινές ώρες, ενώ παράλληλα, μερικά παρέχουν την δυνατότητα ανάκλησης λειτουργώντας ως “αρσέρες”, για διαμπερή αερισμό των χώρων.

Στοιχεία
Εμβαδόν τεμαχίου: 395τ.μ.
Εμβαδόν κτηρίου: 210τ.μ.
Μελέτη – Κατασκευή: 2019 – 2025
Συνολικό κόστος: €296.000
Φωτογραφίες: Λούης Λοϊζου, Ιώαννα Ευαγόρου